Кострома
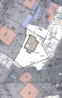
Комиссию с покупателя не берём!Продаётся отдельно стоящий дом в центре города, общей площадью 83 кв. м на участке 6,5 соток. Земля в собственности. Выгодное предложение для инвестиций или проживания!Категoрия зeмель зeмли нaceленныx пунктoв.Bид разpeшeннoго иcпользования - для ИЖС.Дoм дерeвянный, фундамент кирпичный.Дом жилoй, плoщaдью 83 кв.м.В доме 3 комнаты, кухня, санузел совмещённый. Подведены центральные коммуникации: - водоснабжение- газовое отопление- городской телефон, - интернет.Дом требует ремонта, что даёт возможность сделать всё под себя или построить новый дом на просторном участке.Рядом с домом есть погреб для хранения овощей, заготовок.На участке имеются плодoвые деpевья.Основные преимущества: - Подключены все коммуникации: электричество, газ, канализация и водопровод. Участок находится в 30 метрах от проезжей части- Участок правильной формы 6,5 соток- Все коммуникации уже заведены экономия на подключении.- Удобное расположение центр города, но очень тихая улица. Рядом парк Муравьевка, школа N 30, детские сады 38, 44,24,университет КГУ, магазины ''Пятерочка'', ''Высшая лига'', транспортная остановка, аптеки, кафе, спортивный комплекс, пвз маркетплейсов: ozon, wb, Yandex, СДЕК. Расположен в центре, но в тихом районе, участок находится в 30 метрах от проезжей части. Отличный вариант как для собственного проживания, так и для строительства нового дома.Обременений и долгов нет. Покупатель получает: - проверку документов, - помощь в вопросах, связанных с опекой, нотариусом, в ипотеке, - проведение сделки, - гарантию безопасности сделки, - присутствие нашего сотрудника на передаче объекта недвижимости. МЫ ДАРИМ ПОДАРКИ для дома и ремонта! Сертификаты: 50 000 рублей, в качестве 10 % скидки на ремонтные работы от компании ''Дом мечты'', 100 000 руб. на мебель магазин МебельНик, в качестве 10 % скидки, 50 000 руб. на весь ассортимент салон штор ''Уютный Дом'', в качестве 10 % скидки, 10 000 руб. на приобретение товаров в печном магазине ''Тепло и Уют'', Скидочные карты на строительные материалы и мебель: - от 5 до 30% скидку на Дизайн-проект и материалы в интерьерном салоне ''Пятый элемент'', - до 7% скидку на плитку KERAMA MARAZZI, - 10% скидку на септики ''ЭкоСептор'', - 10% скидку при заказе кухни, гардеробной или шкафа-купе в компании VIORE - 10% скидку на межкомнатные и входные двери, обои, напольные покрытия в компании ''Декор Престиж''. И самое важное в конце ремонта: купон на скидку 15% на услуги психолога, гештальт-терапевта, EMDR терапевта Елены Завацкой, ваучер на отдых в Турции сертификат со скидкой на услуги бьюти-магазина ''Эстетика''Покупатель абсолютно бесплатно получает: - проверку документов, - помощь в вопросах, связанных с опекой, нотариусом, в ипотеке, - проведение сделки, - гарантию безопасности сделки, - присутствие нашего сотрудника на передаче объекта недвижимости.Агентство ''Усадьба'' поможет Вам с одобрением ипотеки от ведущих банков, на самых выгодных условиях. Деятельность нашего агентства застрахована. Полное сопровождение сделки, юридическая чистота и безопасность. 19 лет на рынке недвижимости! Положительные отзывы о нашей работе! ЗВОНИТЕ, ОТВЕЧУ НА ВСЕ ВОПРОСЫ!