Дом, Середняя Показать на карте
Середняя
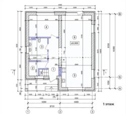
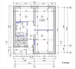
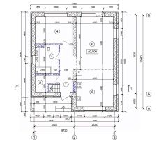
Продается двухэтажный дом в д. Середней!О доме:Плoщaдь дoма: 215,8 кв.м.,Фундамент: свайно-ростверковый,Стены: газосиликатные блоки с комбинированной отделкой (планкен, финишная штукатурка ''короед''),Кровля: металлочерепица Grаnd Linе RАL 7016 (темно-серая),Окна и входные группы: ПВХ,Отделка:Тёплый пол,Ровные белые стены, создающие ощущение простора и света,Современная и надёжная лестница на металлокаркасе.Коммуникации:Отопление: автономное газовое - Газовый котел Вахi,Канализация: септик,Освещение и розетки: полностью подготовлены,Скважина: 45 метров глубинойПланировка первого этажа:Общая площадь - 120 кв.мКухня-столовая (22,9 кв.м)Гостиная (18 кв.м)Холл (5 кв.м)Гардеробная (3,4 кв.м)Санузел (4,5 кв.м)Прихожая (4,2 кв.м)Теплогенераторная/хоз.комната (19 кв.м)Коридор (6 кв.м)Крыльцо (4,3 кв.м)Веранда (30 кв.м)Второго этажа:Общая площадь - 95,5 кв.м:4 просторные комнаты (12,4 кв.м, 13,5 кв.м, 20 кв.м, 18 кв.м),2 балкона (5,8 кв.м, 4,2 кв.м),Холл (10,6 кв.м)Санузел (8,9 кв.м)Об участке:Площадь - 13 соток,Ровная прямоугольная форма,Асфальтированная дорога ведет до самого дома,Планируется сделать отдельный съезд с основной дороги прямо во двор.Инфрастуктура:Лес,В шаговой доступности находятся школа, детский сад, продуктовый супермаркет и автобусная остановка.Автобус до г. Костромы ходит каждый час. id:90661. - Безопасность- Лучшие юристы окажут полное сопровождение на всех этапах купли/продажи- Качество и Профессионализм. Наши специалисты признаны лучшими по уровню сервиса порталов.- Надежность и экономия. Мы являемся ключевыми партнерами всех ведущих банков. Личный ипотечный брокер выберет для Вас оптимальную программу ипотеки. - Прозрачность. Фиксированное агентское вознаграждение. Оплата только после совершения сделки.- Комфорт. Весь комплекс услуг купли/продажи. Формат ''одного окна'' в одном офисе в центре города- Уверенность. Мы входим в ТОП- 25 ведущих агентств недвижимости РФ по версии рекламных площадок.Сделка с недвижимостью - работа профессионалов. Вместе создаем наследие.
215 м2
2 этажа
- Показать контакты
- Добавить в избранное
215 м2
2 этажа
15 500 000
71 826 /м2
