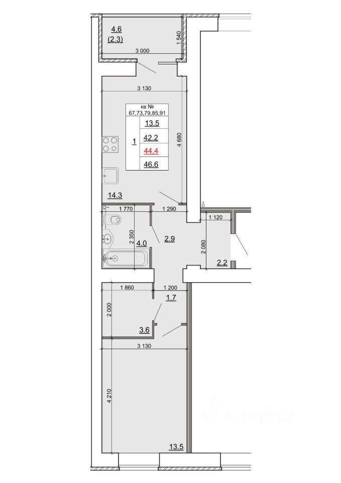
Продаётся 1-комнатная квартира в строящемся доме (Дом 2), срок сдачи: IV-кв. 2027, общей площадью 44.4 кв.м., на 2 этаже. Новый жилой комплекс ''Знак'' от застройщика ГК ''МастерСтрой'' расположен по адресу: Россия, Кострома, бульвар Маршала Василевского