сдам офисное помещение, Советская, 2212 606 ₽ в месяц
17 окт
Дата публикации объявления
Обн. 13 мая
Дата обновления объявления
2
Количество просмотров (+ просмотры за сегодня)
115 ₽/м² в месяц
Параметры
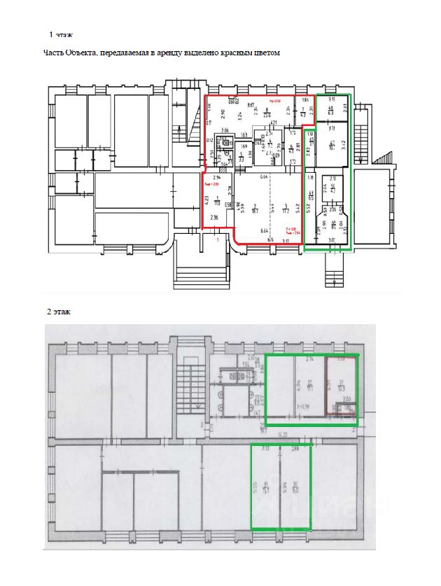
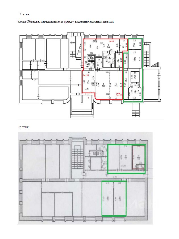
Общая площадь109,2 м2
Этаж1
Код лота: РАД-446949. Реализуется на торгах. Предлагается к продаже на торгах право заключения договора аренды на нежилые помещения, находящееся в собственности ПАО ''Сбербанк'', расположенные на 1 и 2 эт. административного здания по адресу: Костромская область, р-н Островский, п. Островское, ул. Советская, д 22. Объект аренды: - неж. помещение 2-го эт. , общей площадью 58, 0 кв, м, с кадастровым номером 44:15:120117:243 - неж. помещение 2-го эт. , общей площадью 11, 8 кв. м. , с кадастровым номером 44:15:120117:275 - часть неж. помещения 1-го этажа 43, 45, 47, 48, 49, 50, общей площадью 39, 4 кв. м. ,(частью объекта общей площади 141, 0 кв. м. с кадастровым номером 44:15:120117:276). Общая площадь объекта аренды: 109, 2 кв. м.
Код лота: РАД-446949. Реализуется на торгах. Предлагается к продаже на торгах право заключения договора аренды на нежилые помещения, находящееся в собственности ПАО ''Сбербанк'', расположенные на 1 и 2 эт. административного здания по адресу: Костромская область, р-н Островский, п. Островское, ул. Советская, д 22. Объект аренды: - неж. помещение 2-го эт. , общей площадью 58, 0 кв, м, с кадастровым номером 44:15:120117:243 - неж. помещение 2-го эт. , общей площадью 11, 8 кв. м. , с кадастровым номером 44:15:120117:275 - часть неж. помещения 1-го этажа 43, 45, 47, 48, 49, 50, общей площадью 39, 4 кв. м. ,(частью объекта общей площади 141, 0 кв. м. с кадастровым номером 44:15:120117:276). Общая площадь объекта аренды: 109, 2 кв. м. Срок аренды: 11 (Одиннадцать) месяцев с даты подписания Сторонами акта приема-передачи Объекта. Начальная цена (величина постоянной составляющей месячной арендной платы) Лота 1 - 12605 рублей 65 копеек, в т. ч. НДС. Минимальная цена (цена отсечения аукциона) Лота 1 - 8 357 рублей 00 копеек, в т. ч. НДС. Коммунальные и эксплуатационные платежи по Объекту оплачиваются дополнительно. Местонахождение и транспортная доступность: Нежилые помещения находятся в центральной части пос. Островское, который является административным центром Островского района Костромской области, с развитой инфраструктурой. В ближайшем окружении- жилые дома, администрация, социально-бытовые объекты. В здании расположены подразделения Сбербанка, Россельхозбанка, клиентская служба СФР, страховые компании, аптека. Парковка - стихийная на территории, прилегающей к зданию. В семи минутах ходьбы находится автостанция пос. Островское. Расстояние до г. Кострома составляет 52 км. Факторы инвестиционной привлекательности: - выгодное месторасположение, хорошая транспортная и пешеходная доступность, - возможность приобретения для организации арендного бизнеса, - возможность использовать помещения под различные направления деятельности. Торги проводятся на ЭТП РАД Lot-online, код лота РАД-446949. https://catalog. lot-online. ru/index. php?dispatch=products. view&product_id=1598733