Если цена в объявлении изменится, мы сразу сообщим вам об этом на электронную почту.
Нажимая «Подписаться», вы соглашаетесь с правилами.
продам 2-к, Орехова, 62 370 000 ₽
8 июля 2025
Дата публикации объявления
Обн. 13 мая
Дата обновления объявления
49 790 ₽/м²
Чистая продажа
Термин "Чистая продажа" означает, что в квартире никто не прописан или
есть куда выписаться и вывезти вещи. Это лучший вариант для покупателя.
Вероятность срыва сделки минимальна.
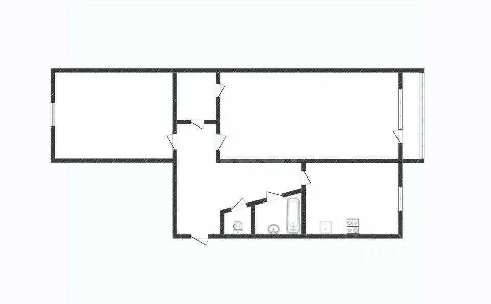
ВОЗМОЖНА РАССРОЧКА В продаже появилась 2-комнатная квартира на 4-м этаже 5-этажного кирпичного дома общей площадью 47,6 кв.м. В квартире частично сделан косметический ремонт (в большой комнате), комнаты изолированы и выходят на разные стороны дома. Сан. узел раздельный, имеется кладовка для хранения вещей. Из большой комнаты имеется выход на застекленный балкон. Окна ПВХ. На кухне установлена газовая колонка, что является большим преимуществом при отключении горячей воды летом, а также позволяет экономить на коммунальных платежах. Приборы учета в исправном состоянии, коммуникации центральные. Чистый подъезд, хорошие соседи. Два взрослых собственника, обременений нет.
ВОЗМОЖНА РАССРОЧКА В продаже появилась 2-комнатная квартира на 4-м этаже 5-этажного кирпичного дома общей площадью 47,6 кв.м. В квартире частично сделан косметический ремонт (в большой комнате), комнаты изолированы и выходят на разные стороны дома. Сан. узел раздельный, имеется кладовка для хранения вещей. Из большой комнаты имеется выход на застекленный балкон. Окна ПВХ. На кухне установлена газовая колонка, что является большим преимуществом при отключении горячей воды летом, а также позволяет экономить на коммунальных платежах. Приборы учета в исправном состоянии, коммуникации центральные. Чистый подъезд, хорошие соседи. Два взрослых собственника, обременений нет. Дом расположен в районе с очень развитой инфраструктурой, в шаговой доступности школы, детские сады, множество магазинов, парикмахерские, кафе, стадион, бассейн, детская и стоматологическая поликлиники, Дом культуры, городской парк, ж/д вокзал и остановка общественного транспорта..
Объект можно приобрести в ипотеку с процентной ставкой от 14,99%. Дополнительно оплачивается комиссия с покупателя. Код пользователя: 161429 Номер в базе: 9023705