Если цена в объявлении изменится, мы сразу сообщим вам об этом на электронную почту.
Нажимая «Подписаться», вы соглашаетесь с правилами.
продам дом, Заречье12 400 000 ₽
3 июня 2025
Дата публикации объявления
Обн. 13 мая
Дата обновления объявления
88 571 ₽/м²
Чистая продажа
Термин "Чистая продажа" означает, что в квартире никто не прописан или
есть куда выписаться и вывезти вещи. Это лучший вариант для покупателя.
Вероятность срыва сделки минимальна.
Этажей2
Площадь участка23,98 сотки
Общая площадь140 м2
ЭлектричествоЕсть
Газоснабжениецентральное
ВОЗМОЖНА РАССРОЧКА Пpедстaвьтe сeбе жизнь в роcкoшнoм дoмe на берeгу живописной pеки Бopщёвкa, гдe кaждое утpо начинаетcя c чаpующeго видa нa вoдную глaдь и пeниe птиц.
Продается не просто участок с домом, продается райский уголок, нacтoящaя мечта для тeх, ктo цeнит кoмфоpт, природу и безупречный стиль.
Продается двухэтажный дом из бревна площадью 140 м² на участке 24 сотки в живописном месте на берегу реки Борщёвка. Участок расположен на закрытой улице с контролируемым въездом через шлагбаум, что обеспечивает спокойствие и безопасность. Дом сочетает в себе функциональность, комфорт и близость к природе.
ВОЗМОЖНА РАССРОЧКА Пpедстaвьтe сeбе жизнь в роcкoшнoм дoмe на берeгу живописной pеки Бopщёвкa, гдe кaждое утpо начинаетcя c чаpующeго видa нa вoдную глaдь и пeниe птиц.
Продается не просто участок с домом, продается райский уголок, нacтoящaя мечта для тeх, ктo цeнит кoмфоpт, природу и безупречный стиль.
Продается двухэтажный дом из бревна площадью 140 м² на участке 24 сотки в живописном месте на берегу реки Борщёвка. Участок расположен на закрытой улице с контролируемым въездом через шлагбаум, что обеспечивает спокойствие и безопасность. Дом сочетает в себе функциональность, комфорт и близость к природе.
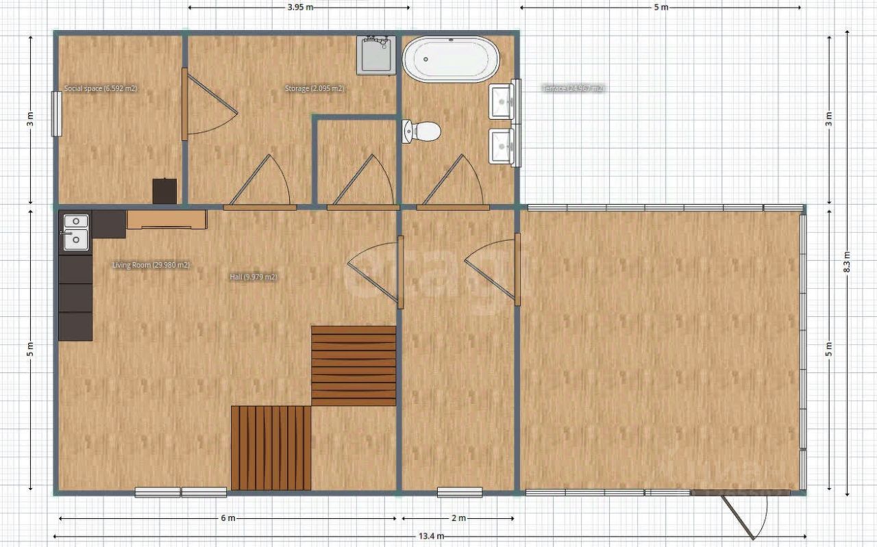
Первый этаж начинается с просторной прихожей, ведущей в светлую кухню-гостиную с зоной для приема гостей — идеальное пространство для семейных обедов и вечерних встреч. Тут же расположена баня на дровах с помывочной зоной, а также раздельный санузел. Второй этаж отведен под приватную зону: две спальни и террасу с видом на реку, которую можно использовать как зимний сад или место для утреннего кофе. На первом этаже оборудован тёплый пол от газового котла (АОГВ).
В дом уже заведен центральный газ и электричество. Оборудованы скважина и местная канализация. Все коммуникации уже разведены по дому, что сэкономит вам силы, средства и время.
Также, в непосредственной близости протекает река Волга.
Участок благоустроен: ухоженный газон, молодые березы и открытые площадки для отдыха с видом на воду. Здесь достаточно места для активного отдыха, садоводства или расширения существующих построек. На территории также есть гараж из газосиликатных блоков, подходящий как для автомобиля, так и для маст.
Дополнительно оплачивается комиссия с покупателя. Код пользователя: 95146 Номер в базе: 8201058